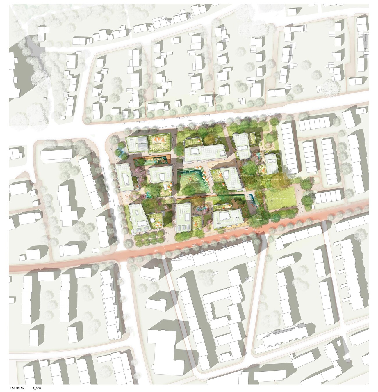
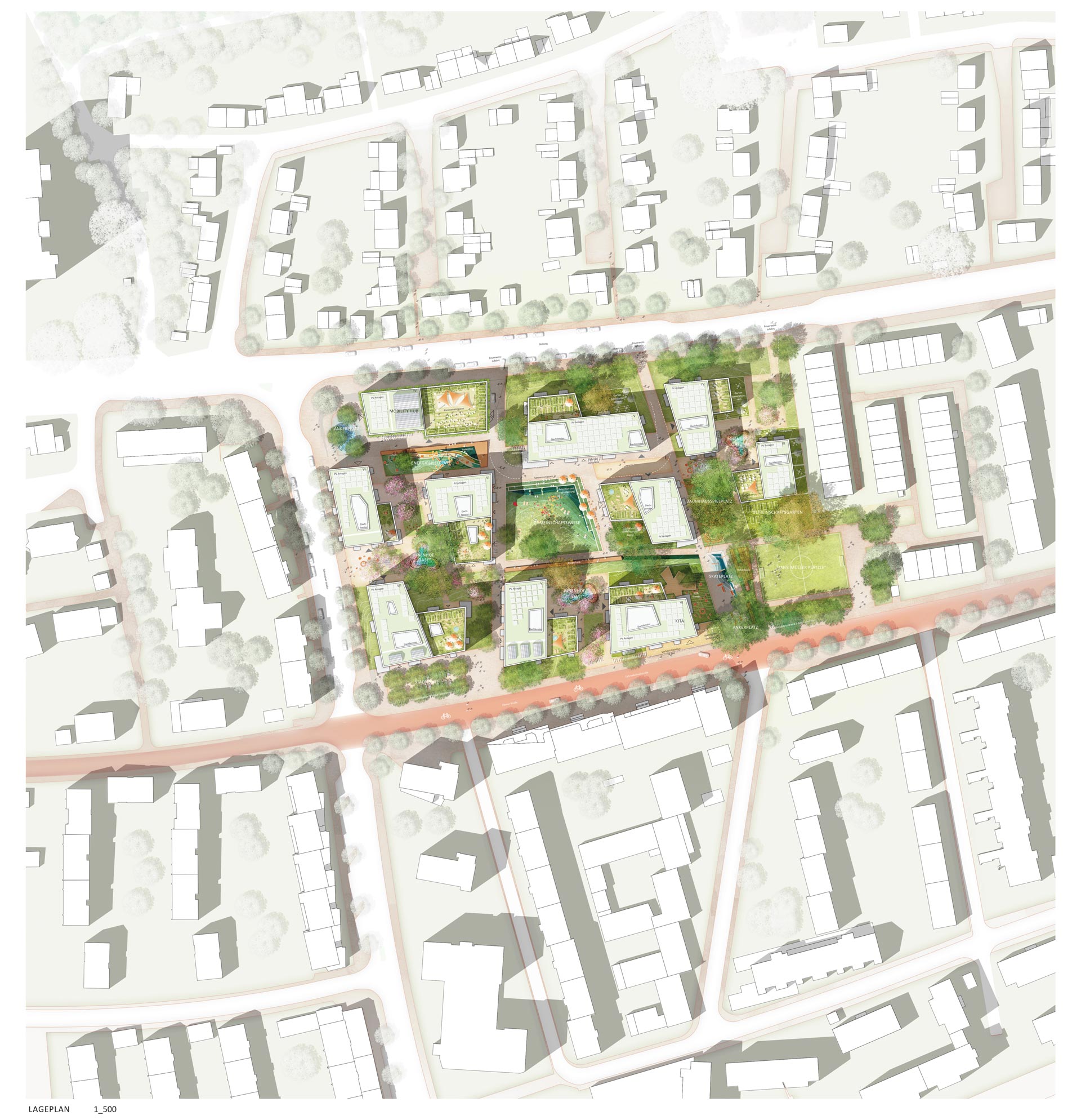
Quartier am Rotweg, Stuttgart, Allemagne
A quarter with 10 buildings (3-7 storeys) and approx. 430, 556 ft² / 40,000 m² gross floor area in timber hybrid construction - reinforced concrete skeleton with non-load-bearing timber frame outer wall and timber facades and the following uses: over 220 rental apartments, including a day care center, residential care communities, common rooms, offices of the cooperatives, restaurants and other space for commercial use
The new district on Rotweg promotes cooperative living in a sustainably developed urban environment. Together with the International Building Exhibition IBA'27, it shows what future living in Stuttgart can look like. Quartier Am Rotweg is an important project of IBA'27. A socially, ecologically and economically sustainable residential quarter is being created with over 220 rental apartments, an inclusive day-care center, shared care apartments, communal spaces, restaurants and other facilities that will make the quarter a lively and diverse place. The district is characterized by its high urban qualities and generous open space, which benefits the residents and the entire neighbourhood.
From the House of the Future (IBA 1927) to the Neighborhood of the Future (IBA 2027)
In the 1920s, the IBA looked for answers to the house of the future, a new way of living and, associated with this, a new aesthetic of building. 100 years later, we are again looking for something new as part of the IBA, but the themes have changed. Today, we are looking for new forms of living together in the district, new links between living and working, as well as a diverse use of green and open spaces for a pleasant urban climate. All these aspects play a role in creating a crisis-proof neighborhood for self-determined living in the cooperative quarter on Rotweg.
Transsolar advised the project on a neighborhood and building scale with regard to the energy and climate concept, as well as the quality of daylight in the interior and exterior spaces.

