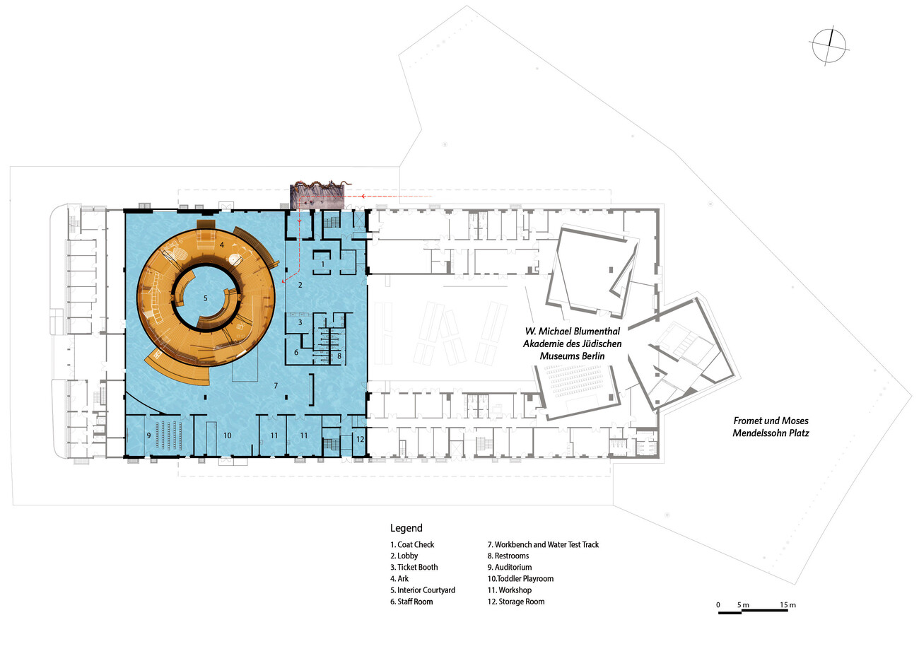
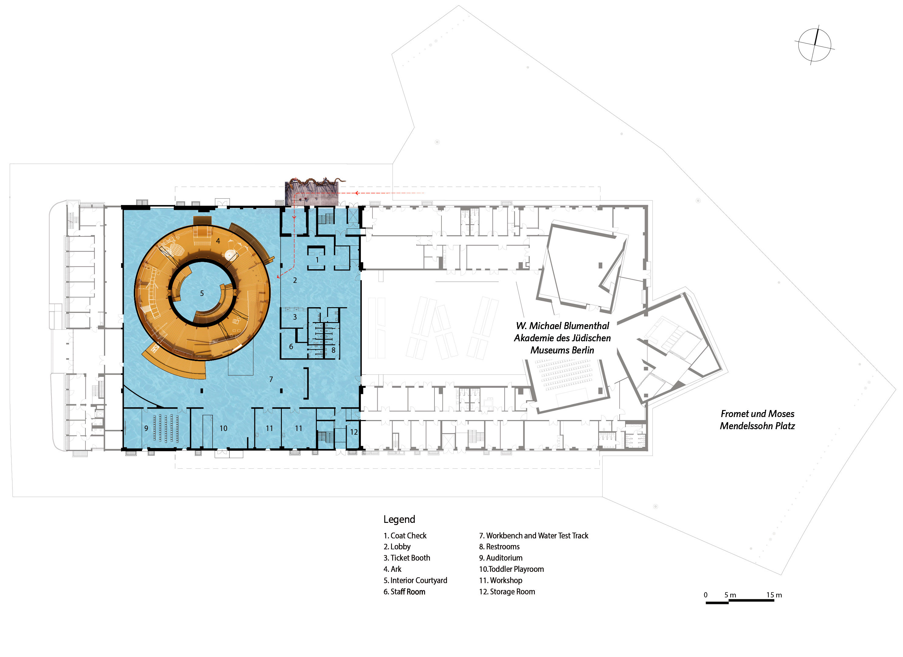
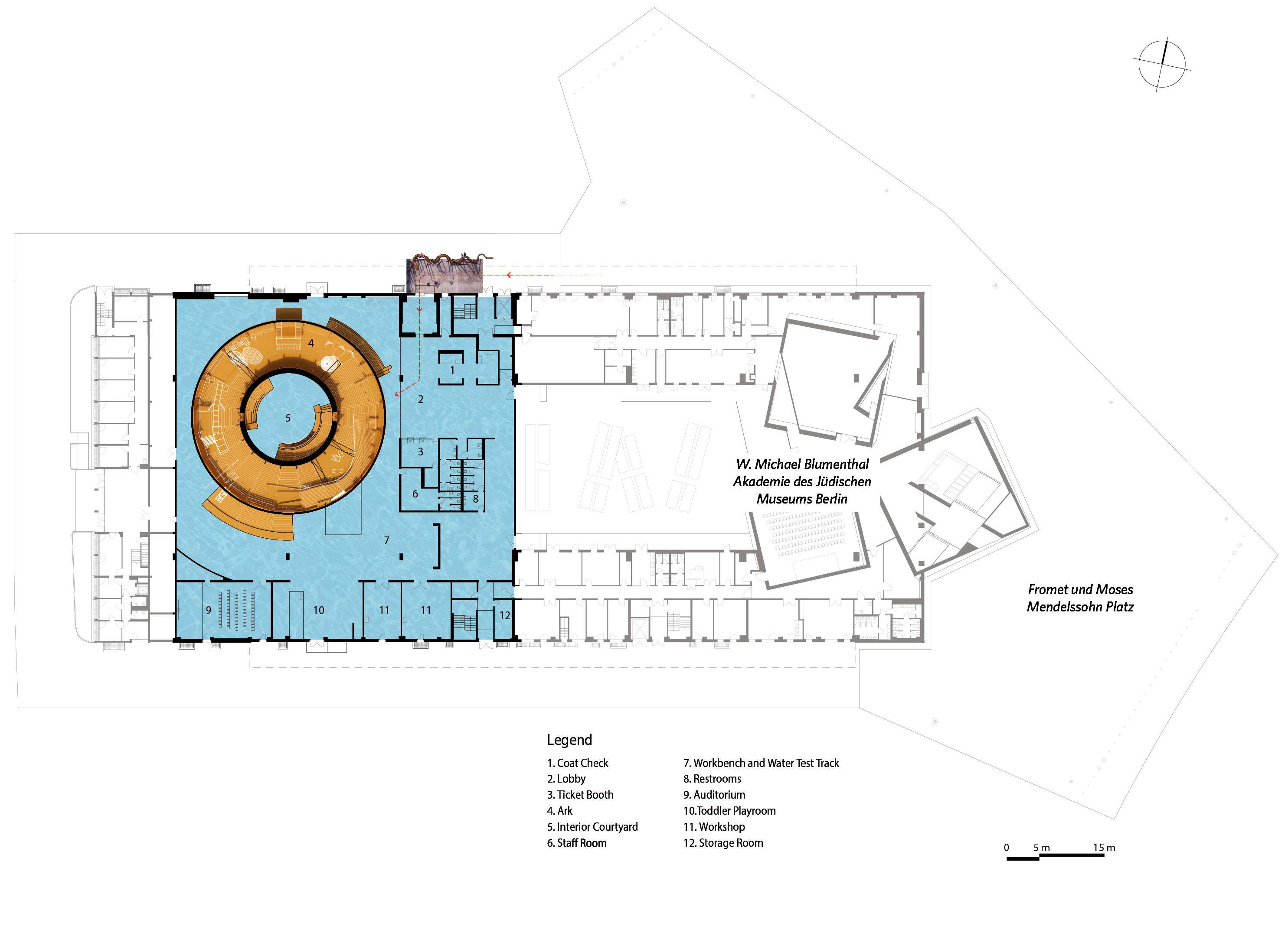
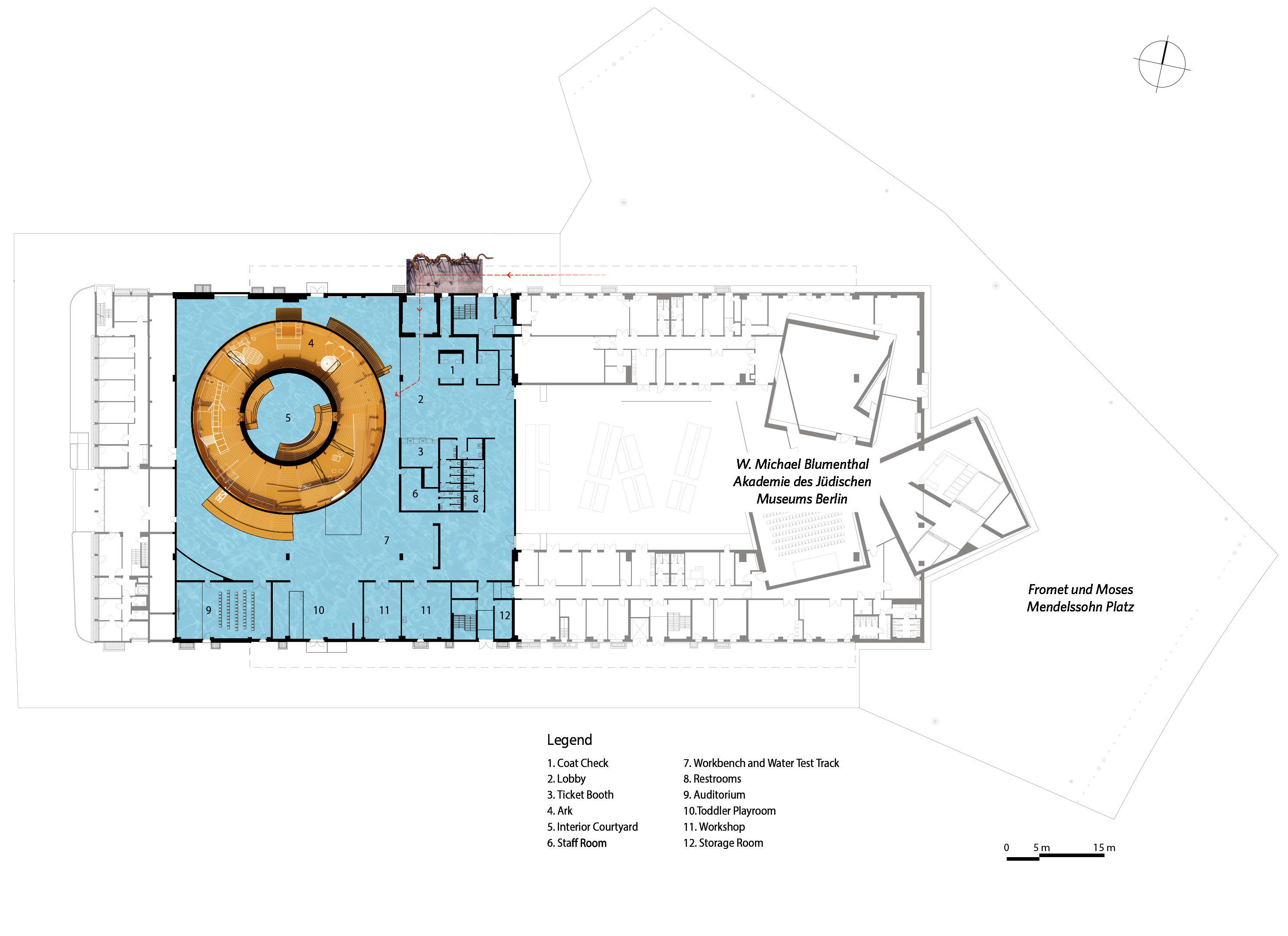
ANOHA – le Monde des Enfants du Musée Juif, Berlin
Autrefois un marché aux fleurs, l’immense hall de l’académie W. M. Blumenthal, en face du Musée juif au cœur de Berlin-Kreuzberg, abrite désormais aussi le Musée ANOHA. Interprétation moderne de l'Arche de Noé, l’univers des enfants du Musée juif s’intègre selon le principe de « la boîte dans la boîte » dans la structure en béton datant de 1963 . La construction ronde en bois d'épicéa de 7 mètres de haut et de 28 mètres de diamètre contraste subtilement avec l’ossature en béton armé du hall.
Une attention particulière a été accordée à la durabilité lors de la réalisation du musée interactif en tant qu'exposition permanente. L'ancienne halle de marché a été en grande partie conservée, ce qui permet de limiter l'empreinte carbone du projet. Pour la nouvelle construction à l'intérieur du hall, un bois d'épicéa local est utilisé comme matériau dominant pour la structure porteuse, les murs et les plafonds. Là où le sol n'est pas en bois, il est recouvert d'un revêtement en caoutchouc très résistant.
Le grand volume de ce hall sert de source d'air frais et aussi de tampon thermique, en hiver comme en été. Des ventilateurs de plafond silencieux diffusent l'air et des fenêtres ouvrables dans l'arche assurent le renouvellement de l'air et la ventilation naturelle au sein du musée. Il a ainsi été possible d’éviter le recours à une ventilation mécanique dans le musée, ce qui permet de maintenir les besoins énergétiques à un niveau très bas.
Les formes courbes du toit en béton du hall laissent pénétrer suffisamment de lumière du jour à l'intérieur. Les fenêtres de l'Arche soutiennent cette approche d'éclairage naturel passif. Tandis que le hall n'est pas chauffé, l'Arche est chauffée par un système de chauffage au sol, qui, dans des cas extrêmes en été, peut également être utilisé pour le refroidissement.
Au printemps 2022, Transsolar a effectué des tests fumigènes dans le bâtiment.
Ceux-ci permettent de conclure que les ventilateurs assurent un bon mélange de l'air frais entrant avec l'air intérieur chaud. L’air entrant est ainsi réchauffé ce qui minimise le risque de courant d'air et améliore le confort thermique.
2021 AIA Seattle Honor Awards for Washington Architecture, Award of Merit
2020 AIA Northwest and Pacific Region Design Awards, Honor Award
2020 Interior Design Best of Year Award Winner, Kids’ Zone Category



