Université du cinéma de Babelsberg KONRAD WOLF Maison 6, Potsdam, Allemagne
Fondée en 1954, l'ancienne école supérieure allemande d'art cinématographique de Potsdam-Babelsberg a été renommée « Filmuniversität Babelsberg KONRAD WOLF » en 2014. Construit en 2000, le bâtiment principal se compose de cinq bâtiments indépendants reliés entre eux par des atriums vitrés.
Le nouveau bâtiment de trois étages, comprenant des salles d’enseignement et un restaurant universitaire, vient agrandir la plus grande université allemande du cinéma et de la télévision. Une passerelle située au premier étage relie le bâtiment principal de l'université à la nouvelle construction. Le nouveau restaurant universitaire se trouve au rez-de-chaussée et jouxte l'atrium central. La façade est en grande partie vitrée, les nombreuses colonnes intérieures ont des diamètres différents. Les salles situées au-dessus du restaurant sont destinées aux séminaires et aux activités de recherche et d'innovation. Les étages supérieurs abritent quant à eux des salles de séminaire, des salles spécialisées, ainsi que des studios de cinéma et d'enregistrement.
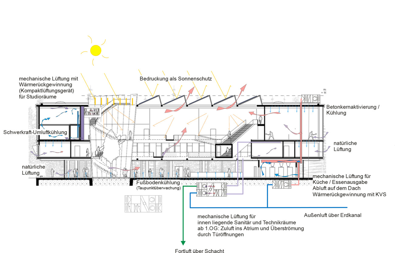
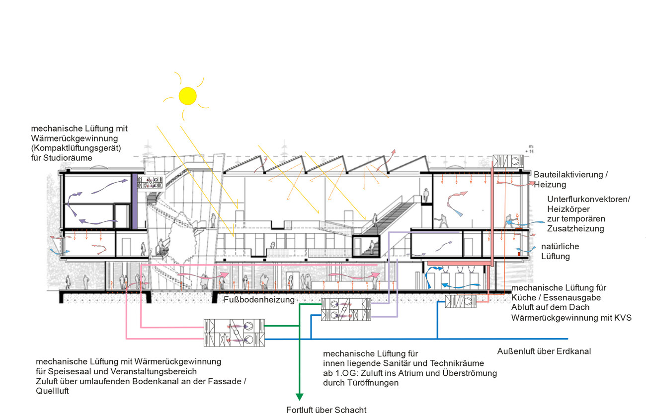
Le concept énergétique et de ventilation développé par Transsolar assure un climat confortable et une qualité d'air optimale. Les locaux le permettant sont ventilés naturellement. En été, la ventilation naturelle nocturne permet de réduire les besoins en refroidissement. Le conditionnement des espaces est assuré par l'activation du noyau de béton à la fois pour le chauffage et pour le refroidissement.
Une pompe à chaleur réversible, associée à 26 sondes géothermiques, couvre une grande partie des besoins en chauffage et est aussi utilisée pour le refroidissement en été. Ces mesures permettent d'atteindre le standard KfW55 Effizienzhaus.
Transsolar a également accompagné la mise en œuvre du concept énergétique et climatique. Le concept est développé en collaboration avec les architectes et les différents intervenants afin de rendre possible sa réalisation de manière concrète.
Cela inclut la conception de la façade mais aussi la mise en œuvre des équipements techniques et de stratégies de contrôle adaptées aux systèmes. Des simulations lors de la phase de conception détaillée et l’établissement de recommandations précises ont permis à Transsolar d’assurer le bon fonctionnement et la réussite de la mise en œuvre des concepts élaborés.
La hausse constante des coûts a également représenté un défi pour l’ensemble des acteurs du projet.



