Filmuniversität Babelsberg KONRAD WOLF Haus 6, Potsdam, Deutschland
 
                           
            Die 1954 gegründete damalige deutsche Hochschule für Filmkunst in Potsdam-Babelsberg heißt seit 2014 Filmuniversität Babelsberg KONRAD WOLF. Das Hauptgebäude aus dem Jahr 2000 besteht aus fünf Einzelhäusern, die über Glasatrien verbunden sind und ein Gebäude bilden.
Der dreistöckige Neubau eines Mensa- und Lehrgebäudes erweitert die größte deutsche Film- und Fernsehhochschule. Eine Brücke im ersten Obergeschoss verbindet das Hauptgebäude der Uni mit dem Neubau. Die neue Mensa befindet sich im Erdgeschoss und grenzt an das zentrale Atrium. Die Fassade besteht weitgehend aus Glas, die vielen Säulen im Inneren haben unterschiedliche Durchmesser. Die Räume darüber schaffen Platz für Seminare sowie Forschungs- und Innovationsaktivitäten. In den Obergeschossen befinden sich Seminar- und Fachräume sowie Film- und Tonstudios.
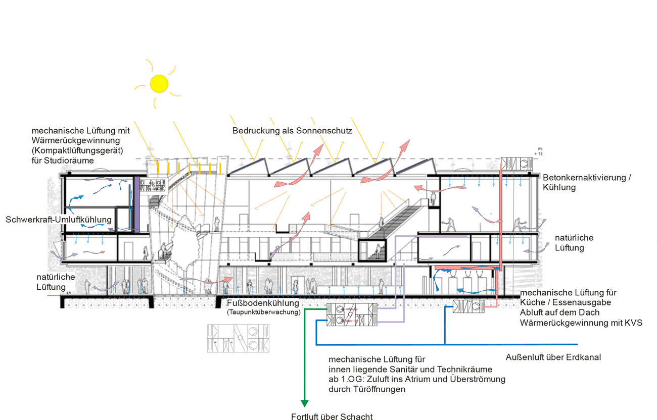
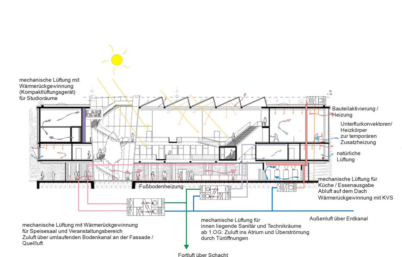
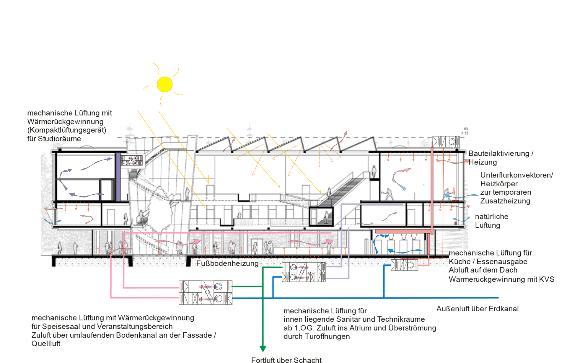
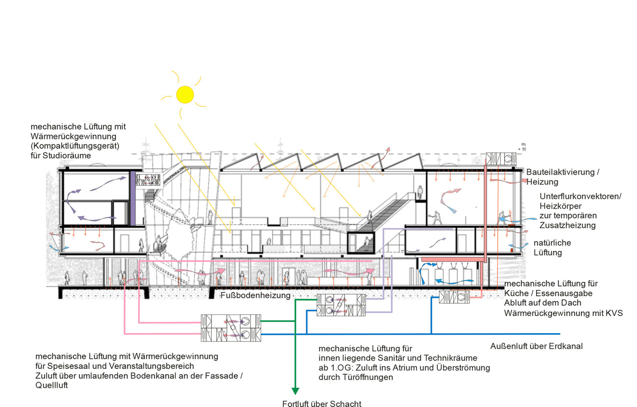
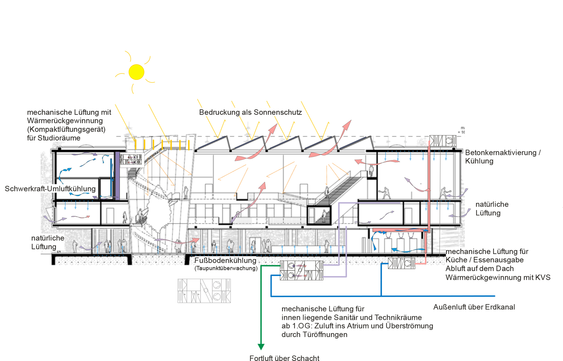
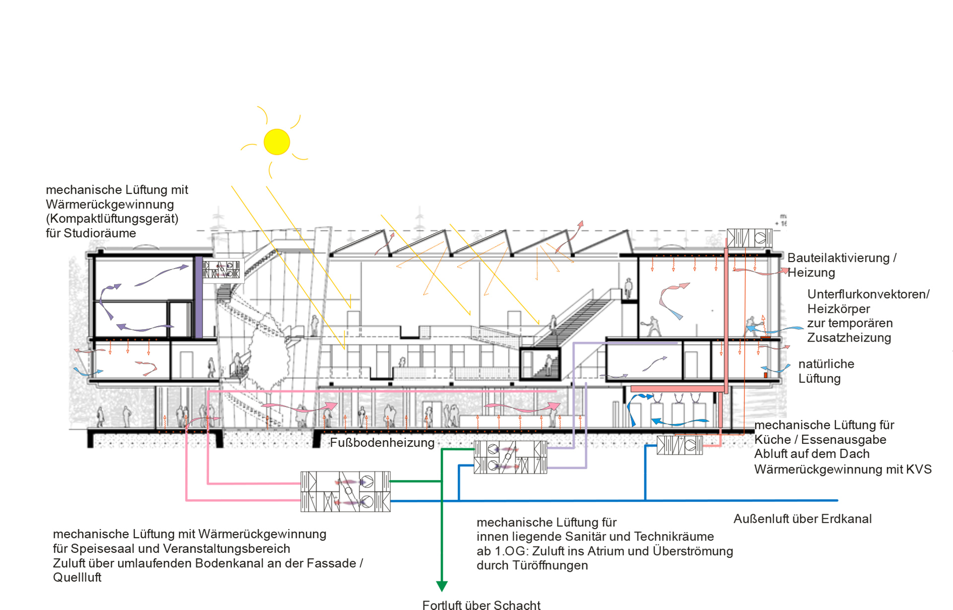
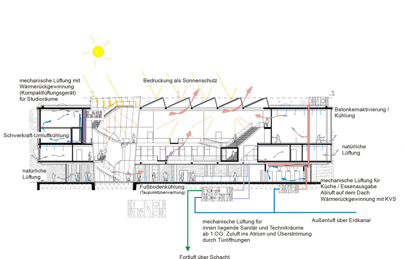
Das von Transsolar entwickelte Energie- und Lüftungskonzept sorgt für behagliches Klima und eine gute Luftqualität. Wo möglich, werden die Räume natürlich belüftet. Eine sommerliche Nachtluftauskühlung reduziert den Kühlenergiebedarf. Die Klimatisierung erfolgt über eine Bauteilaktivierung, die zum Heizen und zum Kühlen genutzt wird.
Eine umschaltbare Wärmepumpe in Verbindung mit 26 Erdsonden deckt einen hohen Anteil am Wärmebedarf und kann im Sommer zum Kühlen genutzt werden. Mit diesen Maßnahmen wird der Effizienzhausstandard KfW55 erreicht.
Zur Umsetzung des Energie- und Klimakonzeptes hat Transsolar begleitende Planungsleistungen durchgeführt. In Zusammenarbeit mit den Architekten und den Fachplanern der TGA wurde die Umsetzung des Konzeptes in die konkrete Ausführungsplanung entwickelt.
Darin eingeschlossen waren die Fassadenplanung sowie die Umsetzung der technischen Ausrüstung und der systemrelevanten Regelstrategien. Mit planungsbegleitenden Simulationen bei jeweils angepassten Randbedingungen hat Transsolar die Funktionalität der Projektumsetzung nachgewiesen und die Umsetzung aller Konzeptelemente sichergestellt.
Besonders gefordert waren die Projektbeteiligten durch den Kampf gegen stetig steigende Kosten.




 
             
             
            