Joudour Sahara Cultural Centre, M’hamid El Gizlane, Morocco
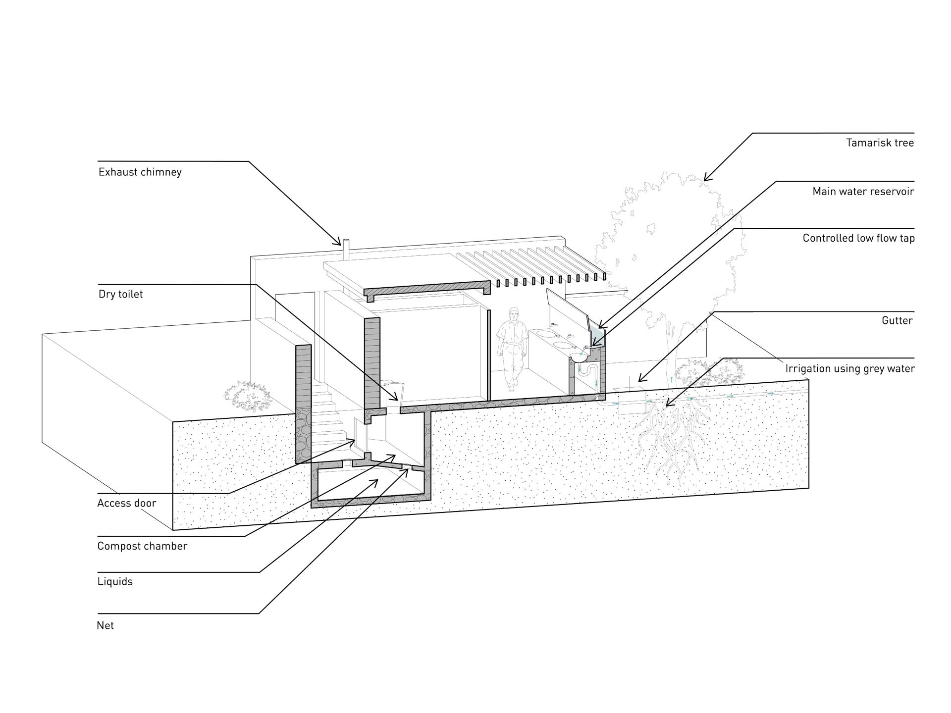
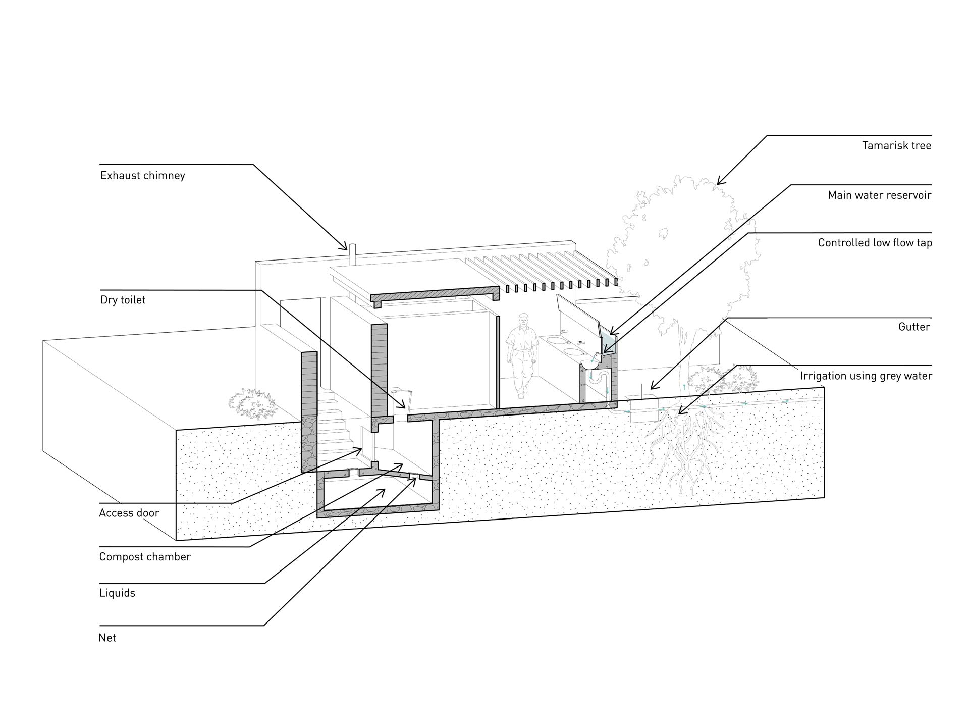
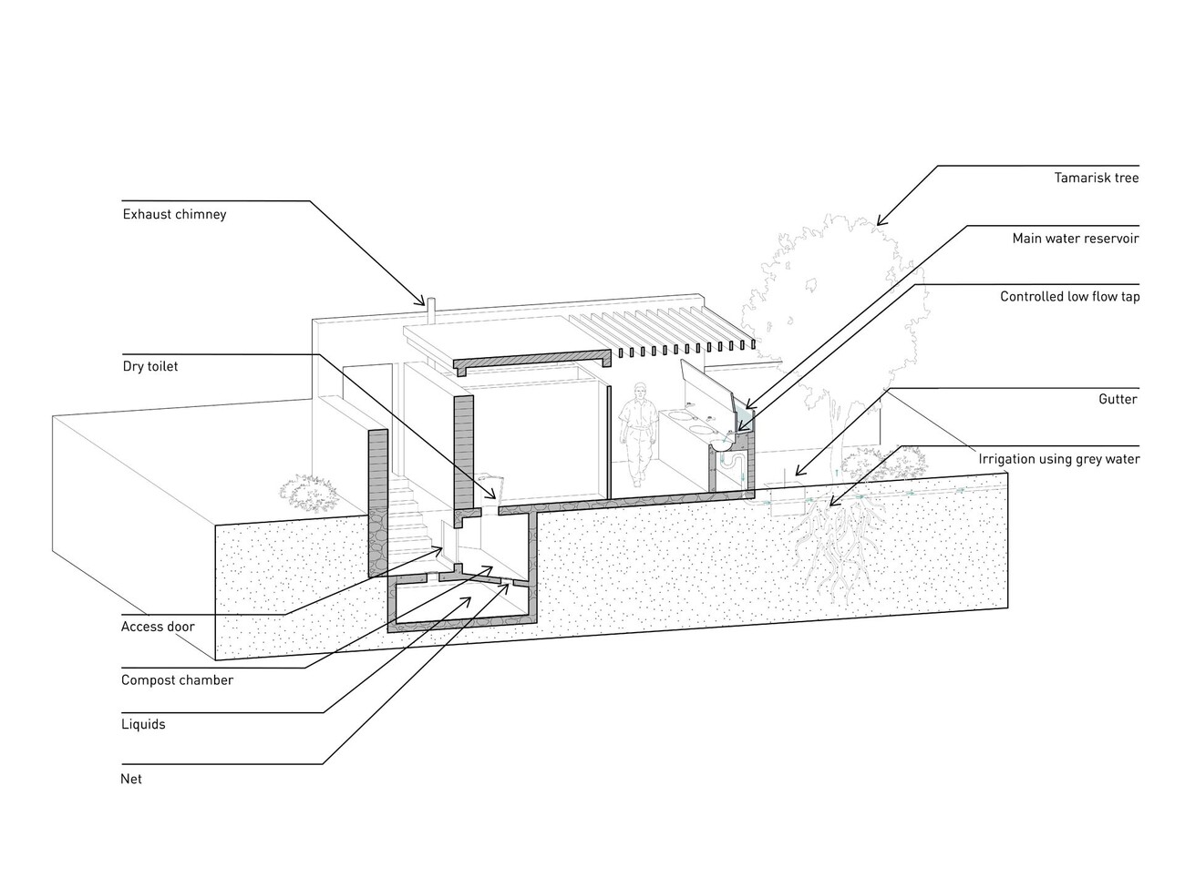
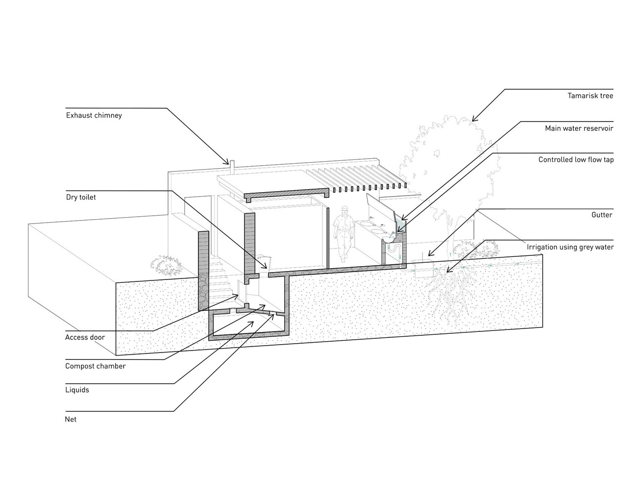
The Joudour Sahara Cultural Centre site is currently not connected to the grid and there are no plans in the future to do so. JSCC’s primary energy source will be solar energy, with its primary outlets being the recording studio, classrooms, and kitchen. Biogas will be generated from compost to fuel the stove in the kitchen. Although the site currently has a well, it will not be used after the construction of the water reservoir (to be completed in phase one, 2021). Using the well depletes the water table and contributes to the effects of desertification. Instead, the water reservoir will be filled with river water three times a year. The retention of this water is more than adequate to serve the site throughout the whole year. To further retain every water droplet onsite, urine will be filtered and used to water permaculture test beds. Natural local soap/ shampoo (Ghassoul) and toothpaste (salt, baking soda, orange peel, dried sage, minth and argan oil) will be used throughout the site to ensure that greywater from sinks and showers can also be used for irrigation.
No air conditioners or forms of mechanical cooling will be necessary on site. Canadian well systems using pipes buried 2 meters below ground will passively cool classrooms, helped by small solar powered fans to move cool air through coils. The water reservoir will be cooled through passive ventilation and evapotranspiration, as the seats in the occupiable top half of the reservoir will allow cool air to escape from below. Shading and cross-ventilation are also prevalent throughout the site, and planting is strategically located next to gardens which provide a cooler microclimate.
Due to the off-grid nature of the site and the efficacy of solar panels in our sunny region, the centre will be completely reliant upon photovoltaic solar panels for its energy consumption. The thermal mass of buildings with 80 cm rammed earth walls volumes provides passive thermal control by absorbing heat during daylight hours (cooling) and releasing it at night (heating). Temperature can drop significantly in the desert, nearing 1oC in the month of January. Windows, placed facing each other to promote cross-ventilation, are placed strategically to limit solar gain and are kept small, not exceeding 30 cm in width and are equipped with wood shutters with louvers, which can be modulated depending on the season and time of day. Further to the shutters, windows have mosquito nests. From May until September when night temperatures are high (25 - 28oC), the louvers of the shutters and the doors of all buildings will be left opened at night to allow for the flushing of the heat released by the rammed earth walls. Solar gain from the roof is limited by the use of a traditional roof composed of a 10-12 cm layer of clay and hay and 5 layers of woven reeds. Mechanical systems are kept to a minimum, with buildings relying on solar panels for energy, a solar-powered water pump for water distribution and 5 solar powered air extractors for the classrooms (one each) and the recording studio (2). Classrooms employ a passive cooling system which consists of solar chimneys combined with a double ceiling and a Canadian well system which supplements natural ventilation with cooled air.
Facilities such as compost toilets streamline waste output and minimize environmental footprint. The use of natural building materials including rammed earth, palm tree trunks, and arish (thatched palm leaves) nearly eliminates CO2 emissions from the life cycle of these structures, with the exception of concrete which is sparring used in the water reservoir.
2021 Holcim Award Bronze Global
2020 Holcim Award Acknowledgement prize Middle East Africa


