Erweiterung der Tiroler Fachberufsschule für Fotografie, Optik und Hörakustik, Hall, Österreich
 
                           
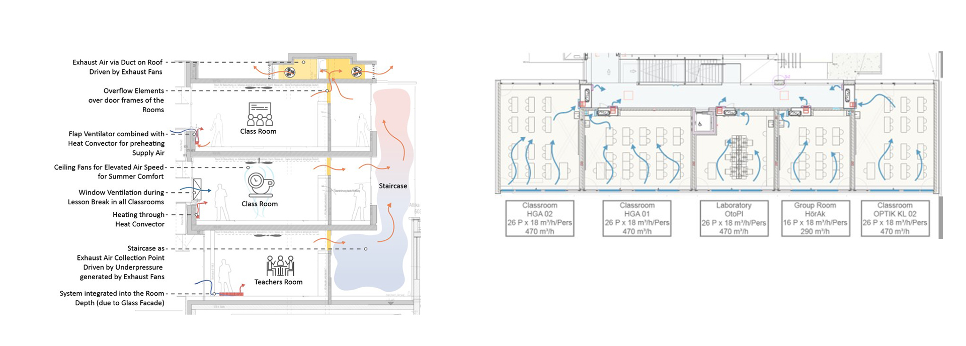
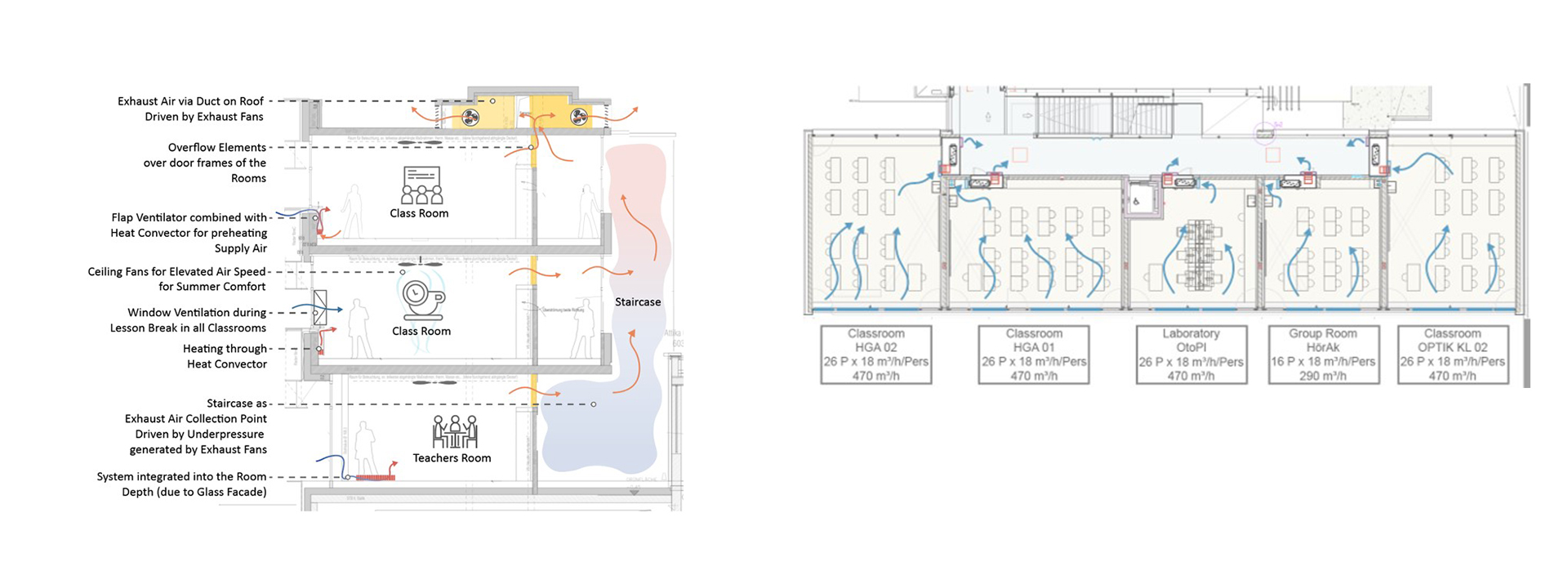
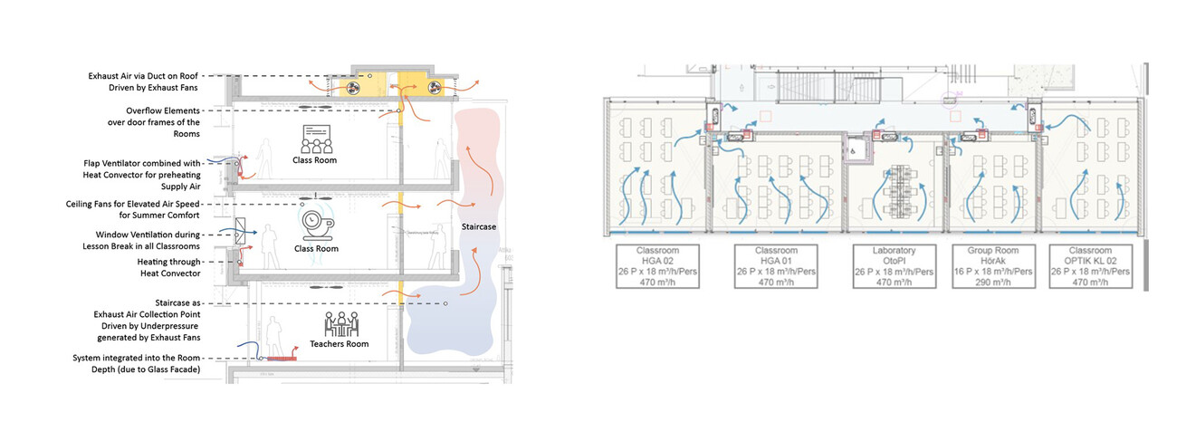
            Die Fachberufsschule wurde saniert und mit einem neuen Gebäudeteil in Holzbauweise erweitert. Das Klima- und Energiekonzept des Erweiterungsbaus zielt darauf, primär mit passiven Maßnahmen wie Fassadenqualität und natürliche Lüftung ein komfortables, selbstregulierendes und robustes Raumklima zu schaffen. Es kommt mit wenig Technik aus und ohne Eingriffe in die architektonische Erscheinung. Bei den Klassenräumen des südorientierten Erweiterungsbaus sorgen feststehende horizontale Verschattungselemente für viel Tageslicht bei geringen solaren Lasten. Deckenventilatoren in den Klassenzimmern sorgen für Luftbewegung, um den thermischen Komfort auch ohne aktive Kühlung an warmen Sommertagen zu verbessern.
Die Grundlüftung erfolgt über fassadenintegrierte, dezentrale Zuluftelemente mit Vorerwärmung der Frischluft über Heizkonvektoren. Die Regelung der Grundlüftung von ca. 18 m³/h pro Person erfolgt über Präsenzmelder, so dass in der Heizperiode nur Frischluft erwärmt wird, wenn sie in den Klassenräumen auch benötigt wird. Zusätzliche Stoßlüftung über Fensterflügel zum Stundenwechselt führt zu einer sehr guten Luftqualität. Die Abluft wird mittels akustisch wirksamer Überströmelemente in den geschossübergreifenden Flurbereiche geleitet, wo sie durch Abluftventilatoren auf dem Dach unterstützt von natürlichen Kaminauftrieb abgesaugt wird. Dieses System gewährleistet trotz geringen Technikeinsatz auch im Winter eine komfortable Grundlüftung. Im Erdgeschoss ist aufgrund höherer Wärmeverluste durch den hohen Verglasungsanteil zusätzlich zu den Heizkonvektoren eine Fußbodenheizung mit Einzelraumregelung verlegt.
Die Gebäudeleittechnik erfasst Temperatur und CO2 Konzentration für jeden Klassenraum, somit kann ein guter thermischer Komfort sowie hohe Luftqualität während des Betriebs, überwacht und sichergestellt werden.
Im Atrium des Bestandsgebäudes verhindert eine Dachverglasung mit scheibenintegriertem Micro-Sonnenschutzraster das Überhitzen durch direkte Sonneneinstrahlung und gewährleistet gleichzeitig gute Tageslichtversorgung. Öffnungsklappen unterhalb des Atriumdachs und Nachströmöffnungen im EG und 1.OG ermöglichen sowohl eine effiziente geschossübergreifende Nachtlüftung sowie ein natürliches Ablüften bei hohen Lufttemperaturen im oberen Atriumbereich.
Lokale Fernwärme aus größtenteils nachhaltiger Biomasse versorgt das Schulgebäude mit Heizenergie. Eine PV-Anlage auf dem Flachdach des Erweiterungsbaus erzeugt mehr Energie als zum Gebäudetrieb benötigt wird und führ zu einer negativen CO2-Emissionsbilanz, hierdurch wird der Erweiterungsbau zum ersten klimapositiven Schulbau in Tirol.
In den nächsten Jahren wird von Transsolar ein Monitoring zur Überprüfung der Komfort- und Nachhaltigkeitsziele sowie zur weiteren Optimierung des Gebäudebetriebs durchgeführt.
Der „klimapositive“ Erweiterungsbau der Tiroler Fachberufsschule für Fotografie, Optik und Hörakustik in Hall, einfache Technik mit hohem Nutzerkomfort, ein "Aushängeschild der Tiroler Bildungslandschaft".









 
            